Darłowo, 18 sierpnia 2014 roku
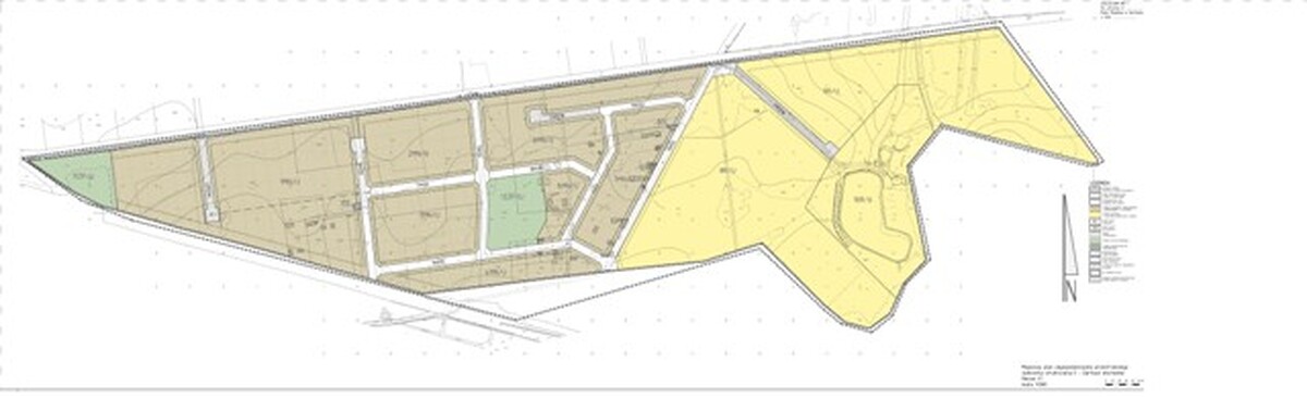
Arkadiusz Klimowicz burmistrz Darłowa zawiadamia o wyłożeniu do publicznego wglądu projektu wraz z prognozą oddziaływania na środowisko miejscowego planu zagospodarowania przestrzennego dla jednostki strukturalnej E–Darłowo Wschodnie. Leży ona w Darłowie w obszarze E1 i obejmuje teren pomiędzy ulicą Leśną a południową granicą miasta Darłowo. Z projektem i prognozą można zapoznać się w dniach od 11 sierpnia 2014 r. do 9 września 2014 r. w siedzibie Urzędu Miejskiego w Darłowie, pok. nr 25, w godz. od 8.00 do 15.00 oraz na stronie Biuletynu Informacji Publicznej Miasta Darłowa w dziale Miejscowy plan zagospodarowania przestrzennego Miasta Darłowo. Dyskusja publiczna nad przyjętymi rozwiązaniami odbędzie się w środę 20 sierpnia 2014 w siedzibie Urzędu Miejskiego w Darłowie (sala nr 22) o godz. 11.00. Zapraszamy.
Każdy, kto kwestionuje ustalenia przyjęte w projekcie planu miejscowego lub w prognozie, może wnieść uwagi, które rozpatrzy burmistrz Darłowa. Uwagi należy składać w formie pisemnej na adres Urzędu Miejskiego w Darłowie, Plac T. Kościuszki 9, 76-150 Darłowo lub ustnie do protokołu w pokoju nr 25 w godzinach pracy Urzędu oraz za pomocą środków komunikacji elektronicznej (bez konieczności opatrzenia podpisem elektronicznym) na adres e-mail poczta@darlowo.pl w nieprzekraczalnym terminie do dnia 23 września 2014, z podaniem imienia i nazwiska bądź nazwy jednostki organizacyjnej i adresu oraz oznaczenia nieruchomości, której uwaga dotyczy.
L. Walkiewicz